iONNA Electric Vehicle Charging Station
Project Type:
Land Use
Project Status:
Under Review
Property Owners:
Barber Street Wildcats LLC (Contact: David Wales)
Applicant's Representative:
Kimley-Horn & Associates, Inc. (Contact: Quinn Duffy)
Public Hearing Date:
Monday, May 11, 2026
Location:
9025 SW Barber St.
Wilsonville,
OR
97070
See map: Google Maps
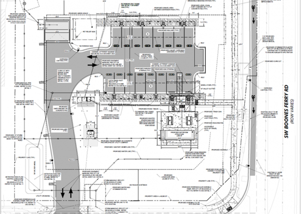
A proposal for an electric vehicle (EV) charging station with 16 EV charging stalls and an amenities building housing restrooms and vending machines at 9025 SW Barber St.
Staff Contacts
Staff can be reached via telephone at 503-682-4960
- Hanna Tuia, Associate Planner
Planning
On May 11, 2026, the Development Review Board Panel A will review this application. (See Public Hearing Notice).
Documents Submitted for the May 11, 2026 DRB hearing (available after May 4, 2026):
